Skills & Experience
  • 2024 Semester Abroad studying at CEU San Pablo Madrid
  • 2024-25 Crumble Magazine Issue 9 - Designer
  • 2023-25 Arcsoc Lecture Organiser
  • 2023 Summer Placement at McMillan & Cronin Architects
Abstract

Rooted in the storied textures of Dunbar’s townscape, Tending Tenons explores the tactile dialogue between timber and stone, between intervention and inheritance.  Working in collaboration with The Ridge, a local charity dedicated to social support and heritage skills, the project proposes a crafted ensemble of spaces: workshops for woodworking and furniture-making, offices for consultations and community outreach, a café accommodating informal exchange, and an apartment for apprentices engaged in the charity’s mission.

Situated on Crossars Wynd, the project aims to breathe new life into the town bridging neighbouring sites ‘Empire’s Close’ by the high street, and ‘The Vennel’ by the sea.  Regenerating and maintaining the site, both socially to engage with the residents and physically reactivating the land.

Thematically guided by ideas of craft, threshold, and close, the design engages directly with Dunbar’s layered fabric.  Timber elements (like tenons) are delicately inserted into existing stone conditions (mortices), conceived as spatial joints that bind new uses to old structures.  These insertions, precise and expressive, metaphorically and materially reflect the carpentry traditions they house.

These crafted joints become moments of spatial negotiation: between old and new, inside and out.   It is a language of making, joining, and care.  Through a choreography of thresholds, light, and structure, ‘Tending Tenons’ positions timber not just as material, but as method, bridging past and present, occupation and support, making and dwelling.  Through close observation, careful making, and an architectural language of joinery, Tending Tenons becomes both a physical structure and a cultural repair.

Hand-drawn exploded perspective 1:100 drawing at A1
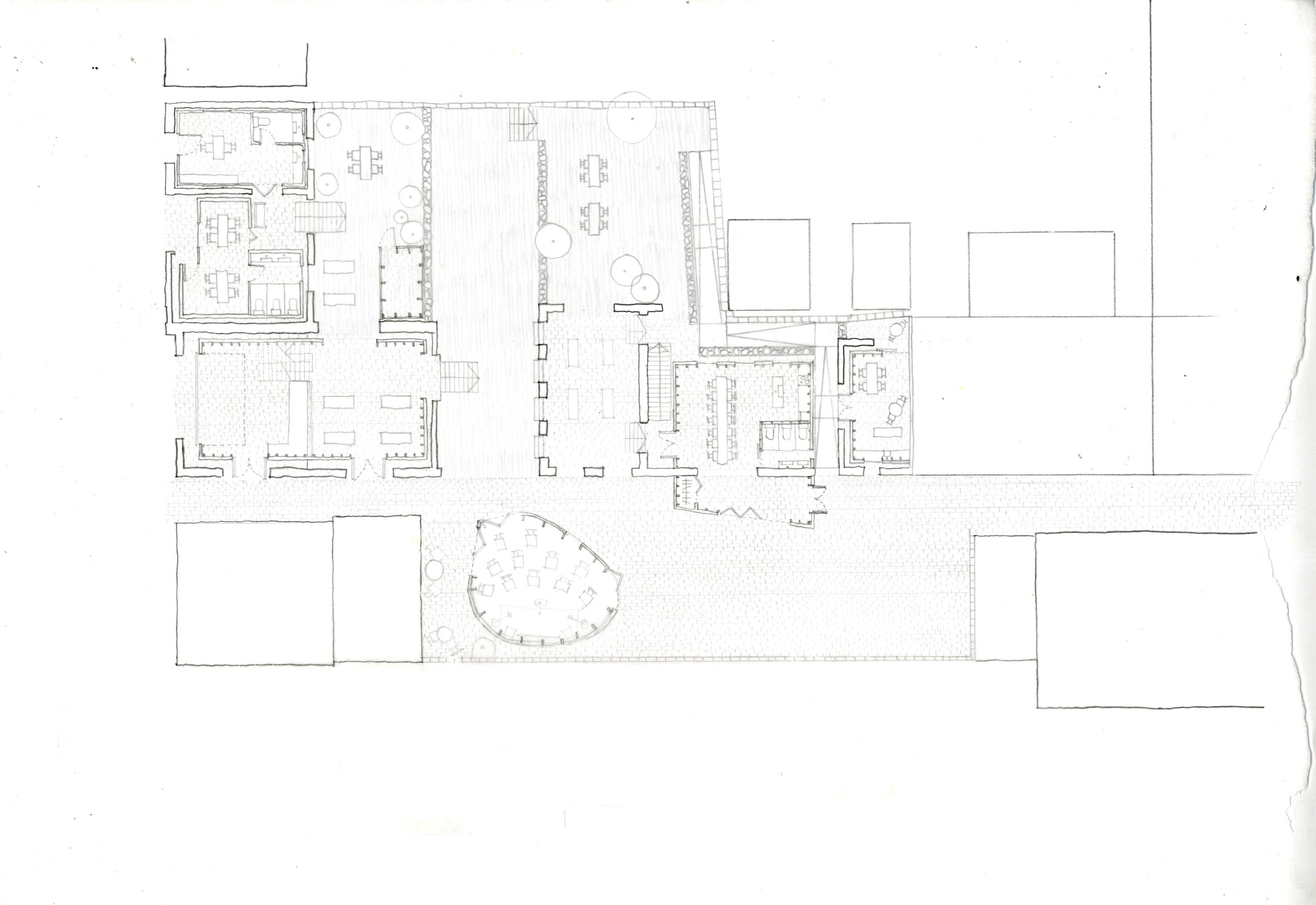
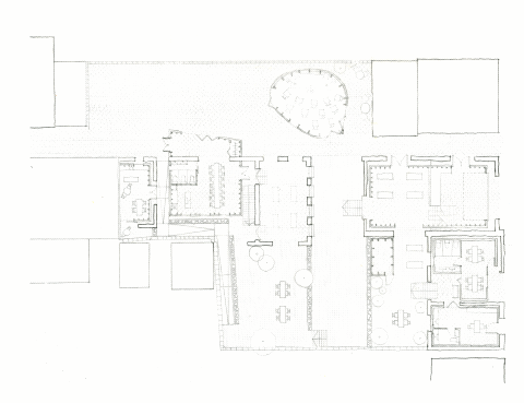
1:200 Ground floor plan
Exploded Axo 1:100 Model
Floorplans
1:50 Hand-drawn section of workshop and apprentice accommodation
Student list
open list
close list