Project description

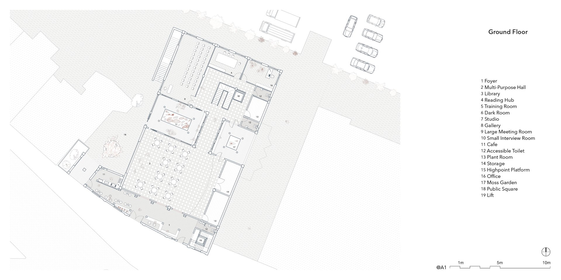
This proposal for Grangemouth seeks to foster greater exchange between the town’s older  residents and younger generations, with the University of the Third Age acting as a bridge between communities. The architectural strategy preserves the original engineer brick façades and historic tower, maintaining the visible traces of weathering as a living record of time, resilience, and continuity. Building upon the existing brickwork, the new tower structure draws inspiration from the transitional layers observed in early interpretation studies of oil, water, and pigment, which is a search for equilibrium within fluid settling processes. Rising from the solid masonry base, the tower extends into a lightweight steel frame softened by warm timber cladding. Physically and symbolically, the Solas Tower becomes a lighthouse for the town, offering sweeping views over the town, river and the shifting skies at sunrise and sunset. The original volume beneath the retained truss is preserved as a large, flexible hall, while a duplicate volume introduces smaller, adaptable spaces through careful subdivision. A moss garden and an elevated bridge weave between old and new, with moss gradually colonising stone surfaces through the quiet action of rain, climate and time that presents a gentle record of weathering. The bridge itself recalls the previous incremental additions to the building, reinterpreted for a more appropriate use.

Casting _ Installation Model
Casting | Installation Model
Casting _ Jar Bottle
Transition Layer
Casting _ Plaster Block
Engraving Plaster Block
Casting _ Shadow
Tectonic Interpretation
Site

Grangemouth is a small industrial town located on the Firth of Forth in central Scotland. Once a thriving port, the town experienced a period of economic prosperity during the 1960s, driven largely by its deep-rooted ties to heavy industry and the development of its oil refinery — one of the last six refineries in the UK.

Scene1 _ Site Study
Scene2 _ Kept & Demolished 1
Scene2 _ Kept & Demolished 2
Circulation

Vertical circulation within the tower leads to the library in the old volume and continues to a highpoint platform for sunrise and sunset. On the ground floor, a narrow threshold connects the two volumes, with windows framing views of the moss garden and linking visually to the adjacent pedestrian routes. A bridge at first-floor level links the two volumes, providing both horizontal circulation and a quiet study hub. In the new volume, vertical circulation is aligned with the threshold below. To the rear of the first floor, an escape stair also acts as an entrance, offering direct access to the exhibition gallery. The circulation system throughout is kept deliberately simple, allowing users to reach their destination easily.

Scene2 _ Parti Diagram _ Circulation
Scene2 _ 1:500 Massing Model _ Proposal
1:500 Massing Model, Site Model Collaboration: Campbell Murray, Yuxuan Wang, Xu Zhang, Zara Coulter
Scene2 _ Parti Diagram _ Flow
Flowing
Moss Garden + Spatial Truss

By extending the slope of the truss, a sheltered corridor is formed — gently enclosing a central, open-air moss garden. This configuration draws the eye inward, creating a quiet moment of focus and calm within the scheme. The corridor serves multiple roles: it acts as a route for circulation, a place for pause, and an opportunity for semi-outdoor seating alongside a café or communal space. A 1:100 sketch model (left column) was used to test whether the structure could stand independently, bridging between the two adjacent volumes without relying on their support. This experiment helped refine both the spatial rhythm of the corridor and the structural logic of the roof.

Aligning with the slope of the existing steel truss, the new volume introduces an opportunity to reimagine the roof structure as more than a means of enclosure. Rather than forming a single plane, the new truss system creates a series of articulated “small roofs” over individual programme spaces. Together, these combine into a larger, unified roofscape — retaining the structural language of a truss, while generating a unique spatial quality. This approach begins to suggest a kind of “spatial truss”: a roof that shapes space as much as it spans it. A 1:200 sketch model (right column) was used to explore this idea, testing how the truss form could operate independently, while responding to adjacent structures.

Scene3 _ 1:100 Fragment Model 1
Scene3 _ 1:100 Fragment Model 2
Scene3 _ Massing
Scene3 _ 1:200 Fragment Model 1
Scene3 _ 1:200 Fragment Model 2
Scene3 _ 1:200 Fragment Model 3
Solas Tower

The Scottish Gaelic term Solas, meaning “light” or “illumination,” expresses both a physical and metaphorical presence of brightness.

At the urban scale, the proposal seeks to reconnect Grangemouth through the physical and symbolic links of refinery, port, river and canal — all of which were central to the earlier interpretation work that explored metaphors of oil, water, and industry. Positioned as a new high point in the town, the Solas Tower offers views of sunrise, sunset, and the layered industrial landscape beyond. Its base preserves the original engineer bricks and sandstone, anchoring it in memory. Internally, new steel columns stabilise the structure, rising into a lightweight steel framework clad in timber, with carefully placed glazing to frame outward views.

Echoing the oil-and-water jar study from the interpretation work, the tower expresses a material transition from a heavy, grounded base to a lighter, elevated structure. In the face of uncertain futures, whether industrial decline or refinery closure, the Solas Tower stands as a symbolic lighthouse for the town.

Scene3 _ Solas Tower Elevation
Scene3 _ Solas Tower _ Model 1:50 _ Top View
1:50, Study Model
Scene3 _ Solas Tower _ Combined Model 1:50
1:50, Settled within the Building Model
Scene3 _ Structure
Premiere _ East-West Section
Premiere _ North-South Section
Premiere _ Tower Section
Premiere _ Tower Vision
Contrast between Original Tower & Solas Tower
Weathering Well

Time moves forward continuously, and weathering is the visible trace that time leaves upon architecture. While repairing or protecting weathered surfaces can sometimes appear to "freeze" a moment in time, I believe that allowing materials to weather naturally gives the building a sense of life. The building "rests" within Grangemouth, its façade shaped uniquely by the local climate and conditions. More than decay, weathering is a demonstration of durability, a dialogue between material, place and time, making the building part of its landscape.

Premiere _ Bridge Render _ Weathering
Freshly Retrofitted
Pr_Bridgefacade_Weathering
After 30 Years of Weathering
Plan oblique
Student list
open list
close list