Project description

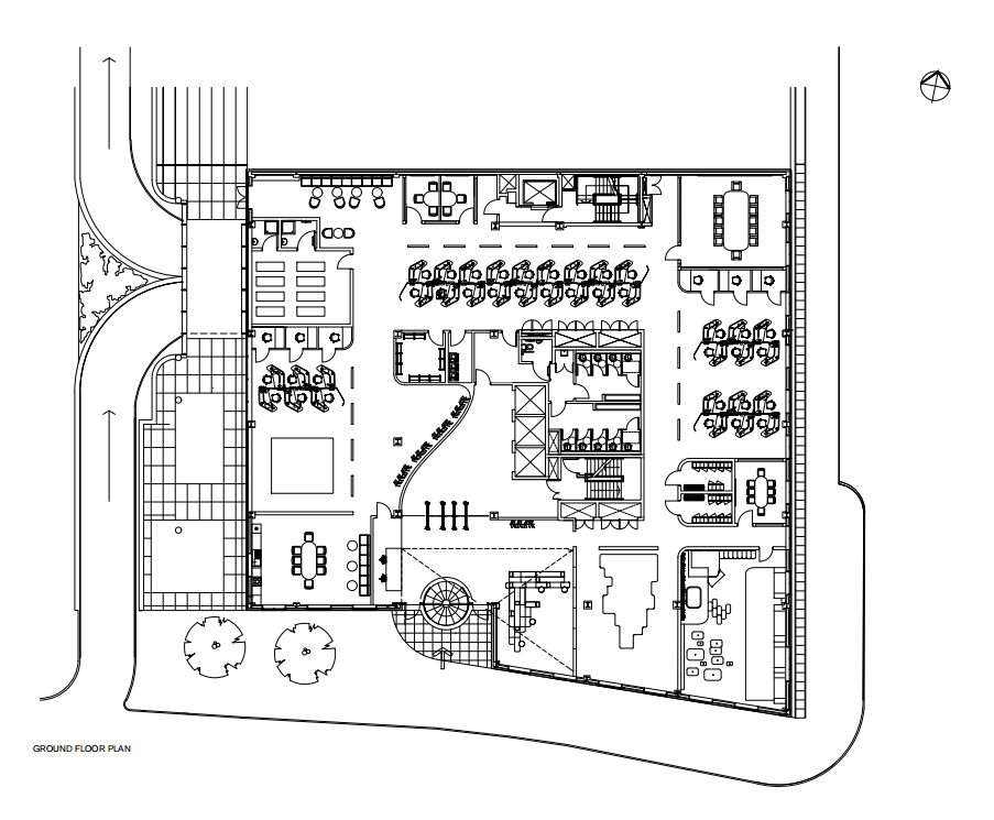
This project addresses the gender gap in office design by focusing on the
needs of female employees in the fast fashion industry. The project adapts
a single floor of 60 Morrison Street by inserting new zones to accomodate
a public facing cafe and catwalk spaces, flexible office areas and more
private meeting and welfare spaces.
 

The design considers the specific challenges faces by women in fast
paced, high-pressure environments. It creates an inclusive, inspiring, and
supportive workspace through flexible, ergonomic layouts, private areas
for rest and personal use, and shared wellness-focused amenities.
 

These elements are intended to enhance dally comfort, support work-life
balance, and promote a stronger sense of equality and belonging in the
workplace. There ia an emphasis on the sustainable profile of materials
used and the configuration of moving partitions and fumiture.